About     Selected Work        Contact                   


Mark





SMALL PROJECTS

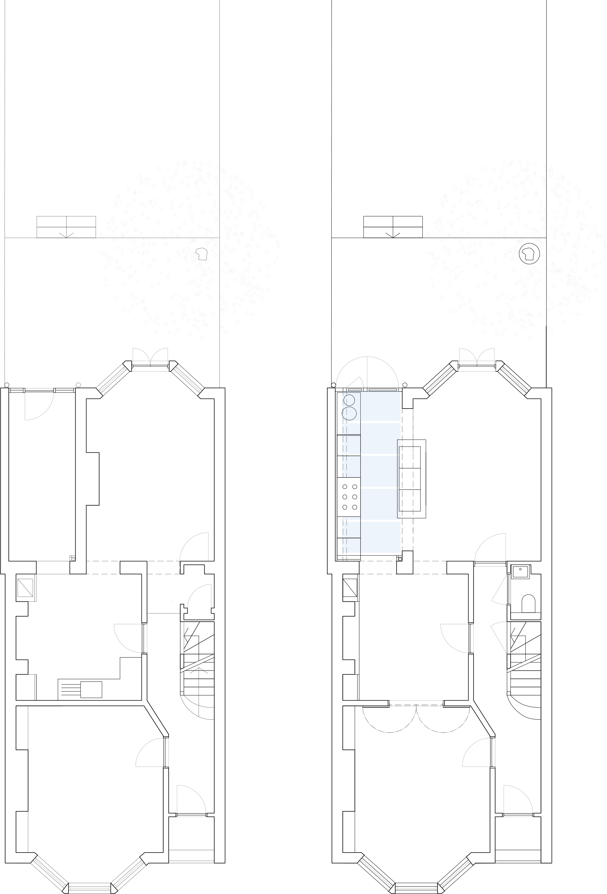
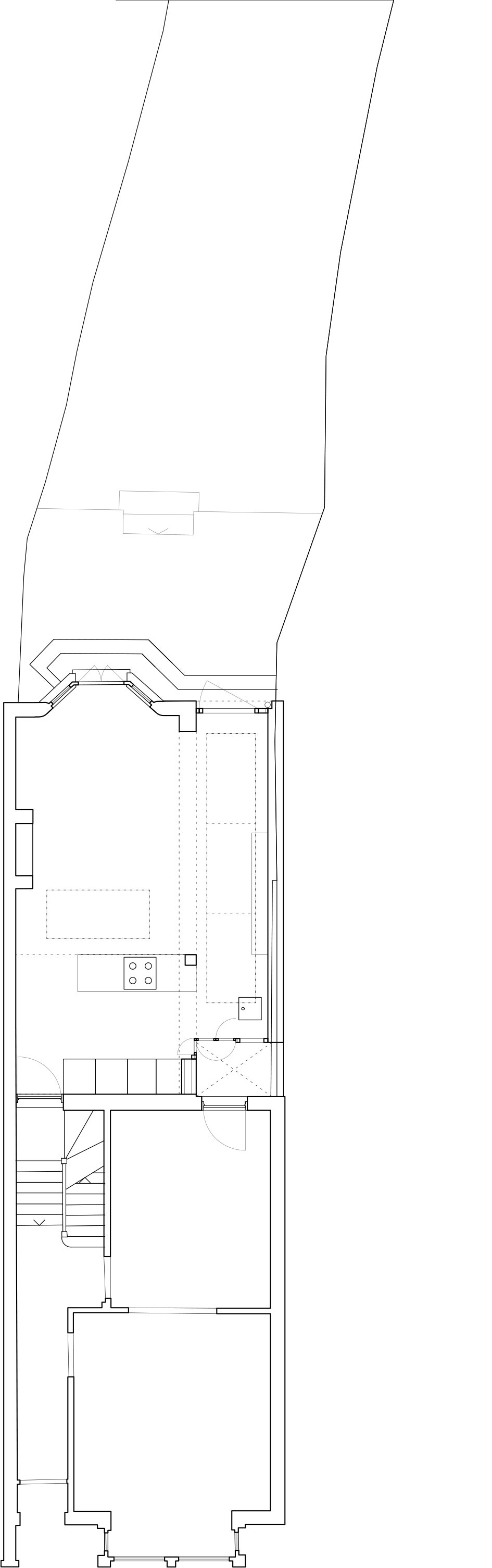
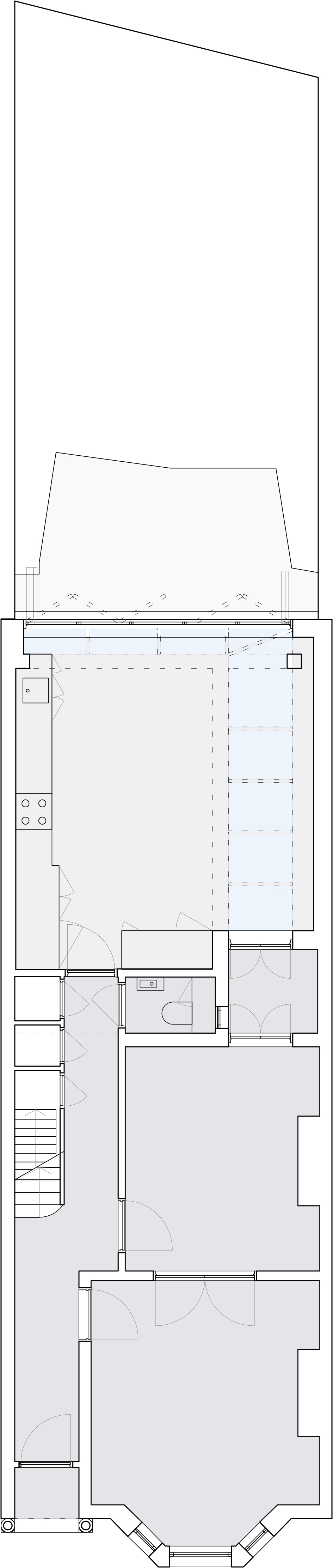
Houlton Architects undertakes architectural consultation work from small projects up to planning stage. The practice can aid clients with the delivery of concept or developed designs for home improvement works. This work would also include advice on planning permissions and permitted development. Houlton Architects’ design acumen will help home improvers obtain a high-quality living environment by providing guidance early on.

Examples of this work include projects at Ulundi Road, Brocklehurst Street, Rochester Road and Kynaston Road.

In each of these projects Houlton Architects has drawn on an understanding of the historical, environmental and physical contexts of the existing building. These small-scale interventions to terraced houses have improved the legibility of the existing spaces and how they are experienced sequentially along with the proposed living spaces. The practice pays attention to the quality that natural light brings to these newly designed spaces, and its expected use by the clients.

Please contact us if you would like to learn more information about these projects or the services we provide to clients looking to undertake small scale home improvement.







                                Humber Road













                               Ulundi Road













                                Kynaston Road





                    Brocklehust Road