WLS BEGINNINGS EARLY LEARNING CENTRE
Type: Building Restoration and Insertion of a Children’s Centre with Roofscape Play space into East wing of Grade 11 Listed Synagogue
Client : West London Synagogue of British Jews- benefactor Morris Bentata
Contractor : Firmco Construction
Contract Type : JCT Intermediate
Project Value CPI : £1,200,000.00
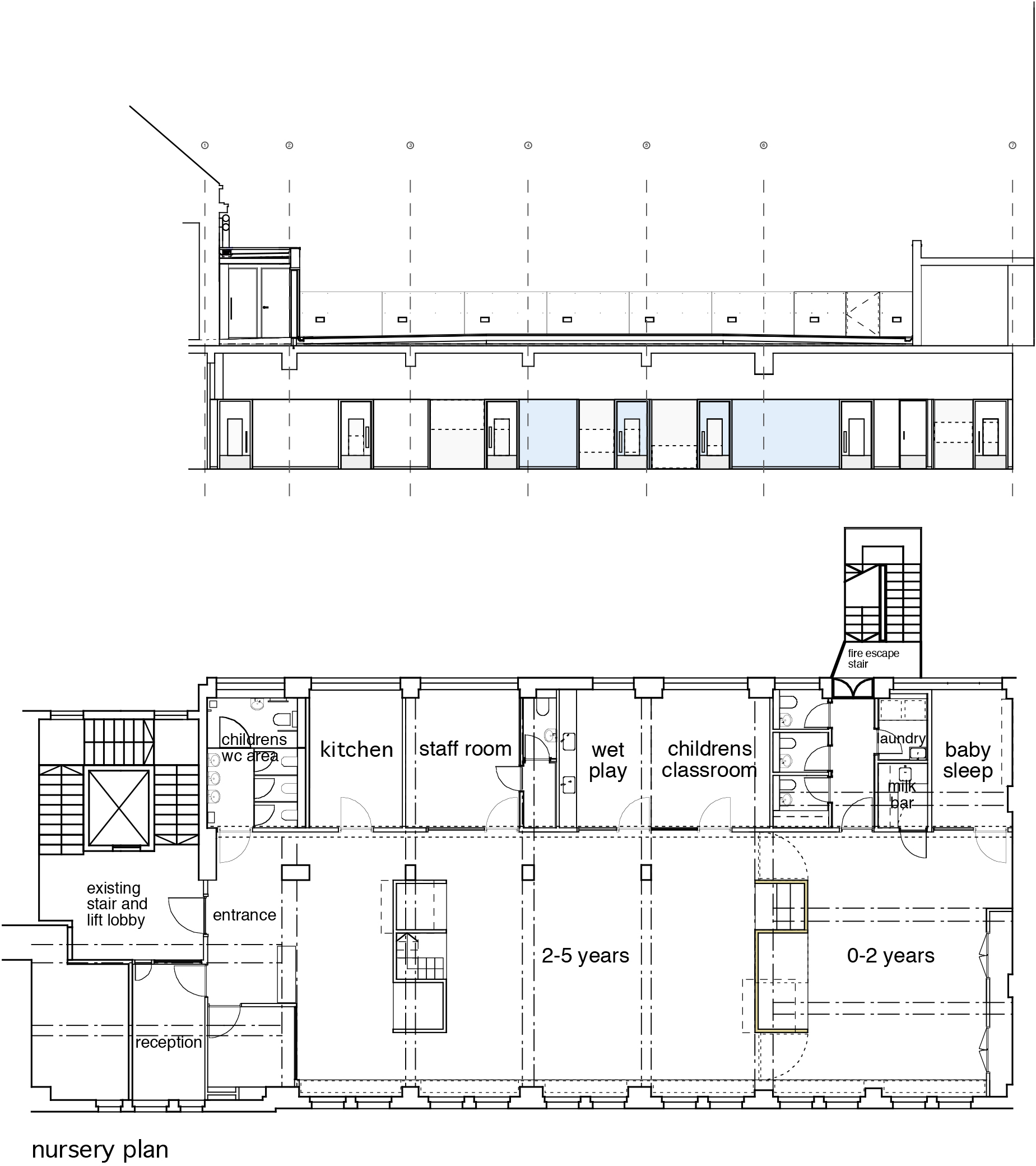
WLS Beginnings Early Learning Centre for children from age groups 0 to 5 years old, Inserted into the top floor of the West London Synagogue at Marble Arch, in the heart of London. The given site consisted of the second floor and roof plate of an existing 1920’s listed building to the western side of Seymour place. The building fabric and the flat roof deck required extensive refurbishment. The existing structural frame afforded the opportunity to reconfigure the arrangement of rooms to the second floor. The new arrangement sweeps away the previous central dark institutional corridor which divided the floor area and consequent series of double loaded tooms. The new hall was seen as a cohesive space which could gather all the activities of the nursery in a visual open environment. However, in order to provide territorial separation between the age groups of children, inhabited furniture elements were proposed which loosely related to the spaces imposed by the position of the existing exposed frame. These elements derived from the thinking about the game of stacking brick cubes, engaging a child’s imagination to take possession of a box, playfully using it in different ways. When entering the hall an object presents to you, which is a children’s “den” raised up to the ceiling. Children play up here peaking though the filigree of holes spying upon parents as they arrive.
Upon the roof above the hall is a newly created play space. Here you are up in the rooftops of central London surrounded by a collage of building roofscape with chimneys, fire escapes, attics and distant towers. The intent of this play space was to create a neutral contained “tray” using safety play surfaces and a perimeter plywood fence. The children can arrange equipment and toys in this space to suit their own play. People comment when up here that this place seems to have brought from a sunny climate. This space is here for children to run around and let of steam up in the rooftops of the heart of central London.








